Description
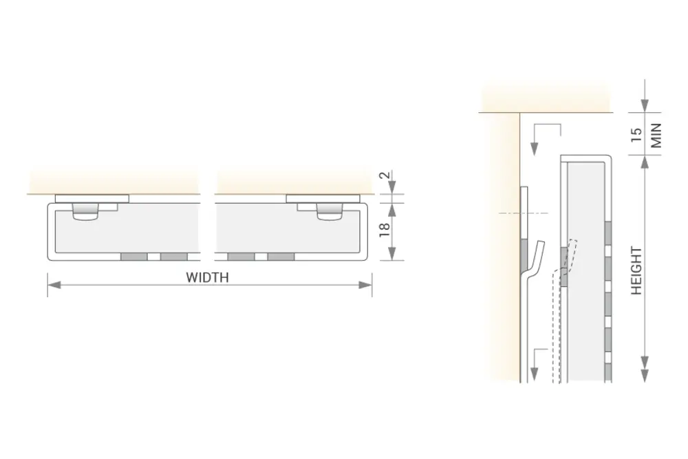
These bespoke sized perforated aluminium ceiling panels can be supplied as a ‘zero-tolerance system’ with easy lift-on/off hanging brackets, cut-outs in the panels for downlighters, sprinklers etc., curved edges to fit around circular columns, and support brackets for panel edges abutting perimeter walls.
These lightweight ceiling panels are produced from our extensive range of perforated hole shapes and patterns in 2mm thickness aluminium.
Alternative surface finishes are available, and these are either polyester powder coated (RAL Colour Management System) or mill (Untreated (untreated).
Our full range of Perforated patterns can be viewed by selecting the above button.




































