bsi. 9001:2015 Certified

Established in 1979

4.7 Star Google Rating

Free Samples Available

Premium UK Supplier

Custom Fabricated Aluminium Wall Cladding

Architectural Metal Cladding Systems for Interior & Exterior Applications

Made-to-measure aluminium wall cladding, fabricated in-house to suit your specification -choice of plain, perforated, or pressed sheet patterns, with optional secret-fix packages and a range of finishes.

Make An Enquiry About Aluminium Wall Cladding

Specify your project requirements below to receive a tailored quote for your bespoke wall cladding system.

Select the fixing package that best suits your application. 

Key Specifications

  • 5 secret fixing (concealed) options
  • Optional framed panel pressure engagement fixings
  • Perforated, patterned or plain surface designs
  • Bespoke CNC cut-outs for utilities and services
  • Normally 2.0mm material thickness
  • Mill (untreated), and RAL Powder Coated Colour finishes

Combine Your Design With Precision Perforated Patterns

Select from our wide range of perforated metal patterns to enhance the aesthetic and acoustic performance of your wall cladding project.

Wall Cladding Product Information

High-Performance Fabricated Aluminium Wall Cladding

We offer five versatile ‘secret fixing’ packages for our ‘made to measure’ aluminium wall cladding panels, ensuring a seamless, fastener-free finish. Choose from an extensive range of materials, including perforated aluminium sheets, plain panels, and decorative pressed patterns. Our panels are typically finished in a high-durability polyester powder coating (RAL) or mill finish to suit your project’s environmental requirements.

Get started: browse perforation options, request free samples, or contact us with your drawings for a tailored quote.

Description

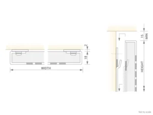
Our bespoke sized wall cladding panels are produced to match the specifier’s requirements in 2.0mm material thickness.

These lightweight aluminium wall cladding panels are produced on our premises to suit your needs.

Our full range of Perforated patterns  can be viewed by selecting the above button.

Health and Safety doc PDF [View Document]

WC1 Install PDF [View Document]

WC2 Install PDF [View Document]

WC3 Install PDF [View Document]

WC4 Install PDF [View Document]

WC5 Install PDF [View Document]

Maintenance of Aluminium Surfaces PDF [View Document]

Tech Data Metalwork PDF [View Document]

WC1 Test Results PDF [View Document]

WC2 Test Results PDF [View Document]

WC3 Test Results PDF [View Document]

WC4 Test Results PDF [View Document]

Aluminium Wall Cladding FAQs

Finding the right specification for your interior or exterior wall project is essential for both aesthetics and longevity. Below, we answer the most frequently asked questions regarding the fabrication, finishing, and installation of our bespoke aluminium wall cladding systems to help you make an informed decision.

Five secret-fix packages are available (GA WC1–GA WC5). Choose based on your joint detailing, appearance, and access requirements.

For the WC1, WC2 & WC3 packages approximately 2420mm high x 1160mm wide, other packages slightly more than this.

Yes, as long as these are specified before we perforate the panels.

Normally, Polyester Powder Coated finishes are specified for the wall cladding panels. Alternatively, the panels can be supplied in the mill (untreated) condition, for alternative surface finishes to be applied by others.

Yes, Free pattern samples are available from stock. These will be posted to you within 24 hours of receiving your request.

No. We are a specialist seamlessly integrated 'exclusively aluminium' stockist, bespoke fabricator and perforator that provides a first class supply service to the architectural and related UK markets.

No, the supply and fitting of infil materials is best left in the hands of those with specialist knowledge who can advise on the most suitable choices for your project.

The Specifier's Choice for Precision Detailing

Successful projects depend on getting the materials right first time. We understand the standards specifiers work to, so every order is handled with tight quality control alongside the flexibility to deliver bespoke requirements.

Assured Accuracy Backed by Certified Quality Systems

At Gooding Aluminium, quality isn’t something we “add on” at the end – it’s built into how we work from the first cut to final dispatch. Our BSI ISO 9001:2015 certification provides a structured, internationally recognised quality management system that supports consistent output and documented checks, across every order – so specifiers can rely on what’s been agreed and expect it to arrive as required.

For architectural projects, compliance and performance can’t be left to chance. Alongside ISO 9001, we produce in line with established British and European material standards, including BS EN 485, 515 and 573. Combined with our specialist 5-Star fabrication service, this gives you the freedom to specify confidently – with dependable manufacturing and repeatable results.

Trusted by Customers Across the UK

Real feedback counts. Here are our most recent Google reviews from customers who choose Gooding Aluminium for reliable aluminium supply, bespoke fabrication, and responsive support – from the initial enquiry right through to delivery.

Explore More Fabricated Aluminium Products

Bespoke Manufacturing with Fast Turnaround Times

Beyond wall cladding, we produce a wide range of made-to-order fabricated aluminium solutions built to fit neatly into your project – from column casings and louvre panels to balustrades, infills and other architectural components. Browse the collection below to compare specifications, request free material samples, or get in touch to discuss your fabrication requirements.

Discover the Gooding Aluminium range

Browse our brochures to see our aluminium product range and perforated sheet options, including standard sizes, pattern choices, and processing details – all designed to support confident specification.

Perforated Sheet Catalogue cover